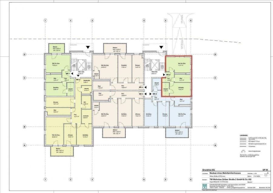
Das Mehrfamilienhaus mit Tiefgarage verfügt über 28 Wohneinheiten (2 – 4 Raumwohnungen) mit innovativen Grundrissen in verschiedenen Größen von ca. 44 m² bis 114 m².
Die Eigentumswohnungen verteilen sich auf das Erdgeschoss, 1. – 3.Obergeschoss und das Dachgeschoss.
Über das Treppenhaus oder den Aufzug sind die einzelnen Wohnebenen perfekt erreichbar.
Alle Wohnungen verfügen über einen Balkon, Loggia oder eine Terrasse.
Auf dem Grundstück finden sich Abstellmöglichkeiten für Freizeit- und Nutzfahrräder sowie die Möglichkeit zum Laden von Elektro-Bikes.
Der Baubeginn ist Anfang 2026 geplant.
Ausstattung kann sich noch im Zuge der Planung erweitern.
Allgemein
Durch eine Anfrage stimmen Sie unseren Datenschutzvereinbarungen (https://www.tw-wohnbau.de/datenschutz/) zu und gestatten uns Sie zu kontaktieren.
Gerne können Sie uns auch außerhalb der Geschäftszeiten via E-Mail kontaktieren.
E-Mail: verkauf@tw-wohnbau.de
https://www.tw-wohnbau.de/
Bild Quelle:
TW Wohnbau Gruppe
Die Immobilie befindet sich im nördlichen Teil Jenas, in der Zeitzer-Straße 2, ehem. IHK-Gelände.
Als traditionsreicher Wissenschaftsstandort mit international renommierten Forschungseinrichtungen, pulsierender Universitätsstadt und wachsendem Zentrum für Hightech-Unternehmen verbindet Jena auf einzigartige Weise Historie, Bildung und Innovation. Nur wenige Schritte vom Saaleufer entfernt entfaltet die Stadt ihr ganz besonderes Flair: kulturell lebendig, urban eingebettet in eine beeindruckende Naturkulisse, die dirkekt vor Ihrer Haustür erstreckt. Der städtische Nahverkehr ist in wenigen Gehminuten erreichbar, ebenso Kindergärten, Schulen und Versorger.
Die dargestellte Position der Immobilie ist nur eine ungefähre Angabe.
Die Website von TW Wohnbau verwendet Cookies, um die bestmögliche Funktionalität zu gewährleisten. Durch die Nutzung dieser Website erklären Sie sich damit einverstanden, dass Cookies auf Ihrem Computer gespeichert werden.