**RESERVIERT**Neubau-Highlight in Jena-Nord (WE04) – Modernes Wohnen in bester Lage – Provisionsfrei ****

07743 Jena, Wohnung zum Kauf

Kontaktdaten

Objektdaten

  • Objekt ID
    2MMBU5D
  • Objekttyp
    Wohnung
  • Adresse
    Zeitzer Straße 2
    07743 Jena
  • Etage
    EG
  • Wohnfläche ca.
    83,23 m²
  • Zimmer
    3
  • Baujahr
    2026
  • Stellplätze gesamt
    01
  • Verfügbar ab
    2027
  • Abschreibung/Anlage
    Kapitalanlage
  • Aufzug
    Personenaufzug
  • Balkon/Terrasse
    Balkon
  • Böden
    Fliesenboden, Kunststoffboden
  • Energieträger
    Fernwärme
  • Fenster
    Kunststofffenster
  • Haustyp
    Neubaustandard
  • Heizungsart
    Fußbodenheizung
  • Küche
    offene Küche
  • Preisinfo
    provisionsfrei
  • Sanitär
    Bad mit Dusche, Bad mit Fenster
  • Serviceleistungen
    Hausmeister, Reinigung
  • Sonstiges/Wohnen
    Abstellraum, Gartenanteil, Haustiere erlaubt, seniorengerechtes Wohnen
  • Stellplatz
    Stellplatz, Tiefgarage
  • TV
    Satellitenanschluss
  • Versorgung
    städtische Stromversorgung, städtische Wasserversorgung
  • Wohnungslage
    Erdgeschoss
  • Zustand
    Erstbezug, gehoben, Neubau, neuwertig
  • Kaufpreis
    374.535 EUR

Ausstattung / Merkmale

  • ✓ Balkon
  • ✓ Gartenanteil
  • ✓ Neubaustandard
  • ✓ Personenaufzug
  • ✓ seniorengerechtes Wohnen
  • ✓ Stellplatz
  • ✓ Tiefgarage

Objekt­beschreibung

Sonstiges

Objektbeschreibung

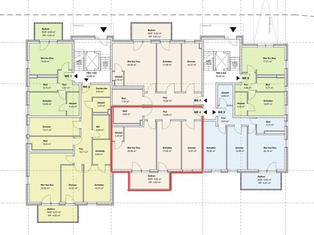
Das Mehrfamilienhaus mit Tiefgarage verfügt über 28 Wohneinheiten (2 - 4 Raumwohnungen) mit innovativen Grundrissen in verschiedenen Größen von ca. 44 m² bis 114 m².

Die Eigentumswohnungen verteilen sich auf das Erdgeschoss, 1. - 3.Obergeschoss und das Dachgeschoss.
Über das Treppenhaus oder den Aufzug sind die einzelnen Wohnebenen perfekt erreichbar.
Alle Wohnungen verfügen über einen Balkon, Loggia oder eine Terrasse.
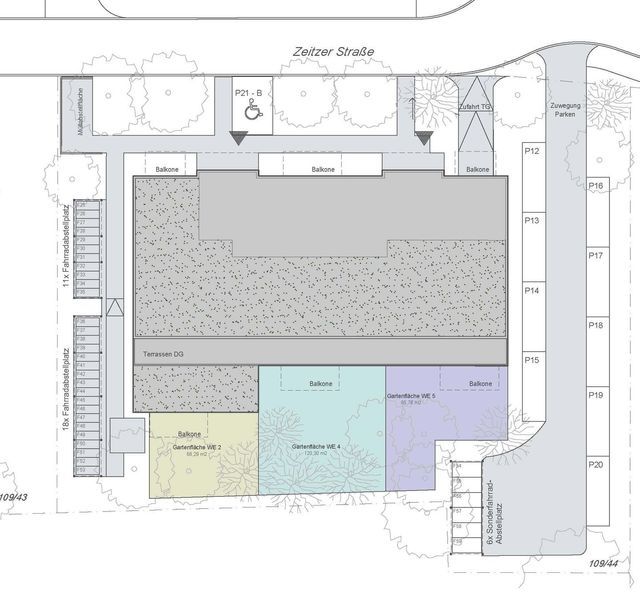
Zu den Wohnungen 2,4 und 5 gehören außerdem jeweils eigene Gartenanteile. Auf dem Grundstück finden sich Abstellmöglichkeiten für Freizeit- und Nutzfahrräder sowie die Möglichkeit zum Laden von Elektro-Bikes.

Der Baubeginn ist Anfang 2026 geplant (ausgenommen sind jahreszeitlich abhängige Außenanlagengestaltungen).

Lagebeschreibung

Die Immobilie befindet sich im nördlichen Teil Jenas, in der Zeitzer-Straße 2, ehem. IHK-Gelände.
Als traditionsreicher Wissenschaftsstandort mit international renommierten Forschungseinrichtungen, pulsierender Universitätsstadt und wachsendem Zentrum für Hightech-Unternehmen verbindet Jena auf einzigartige Weise Historie, Bildung und Innovation. Nur wenige Schritte vom Saaleufer entfernt entfaltet die Stadt ihr ganz besonderes Flair: kulturell lebendig, urban eingebettet in eine beeindruckende Naturkulisse, die dirkekt vor Ihrer Haustür erstreckt. Der städtische Nahverkehr ist in wenigen Gehminuten erreichbar, ebenso Kindergärten, Schulen und Versorger.

Ausstattung

• moderne Heizungsanlage
• barrierefreie Zugänge und Wohnungen
• Kunststoff-Fenster entsprechend dem Gebäudeenergiegesetz
• Design Vinyl
• Fliesenböden in 60x60 cm
• elektrische Rollläden in den Wohnbereichen
• Innentüren als Röhrenspanelement und Kunststoffoberfläche in Weißlack
• Netzwerkverkabelung
• Armaturen und Sanitärobjekte von deutschen Markenherstellern
• Fußbodenheizung
• Abstellkammer
• Personenaufzug
• Schlüsselloses Zugangssystem
• Tiefgarage
• großzügige Abstellflächen für Kinderwagen und Fahrräder

Ausstattung kann sich noch im Zuge der Planung erweitern.

Allgemein

Durch eine Anfrage stimmen Sie unseren Datenschutzvereinbarungen (https://www.tw-wohnbau.de/datenschutz/) zu und gestatten uns Sie zu kontaktieren.

Gerne können Sie uns auch außerhalb der Geschäftszeiten via E-Mail kontaktieren.

E-Mail: verkauf@tw-wohnbau.de
https://www.tw-wohnbau.de/

Bild Quelle:
TW Wohnbau Gruppe

Lage

Die dargestellte Position der Immobilie ist nur eine ungefähre Angabe.

Direktanfrage

* Pflichtangaben
 SSL-verschlüsselt
Darstellung der Immobilien mit WP-ImmoMakler. Immobilien-Daten bereitgestellt von Immowelt.

Login

Register

Compare Listings

Die Website von TW Wohnbau verwendet Cookies, um die bestmögliche Funktionalität zu gewährleisten. Durch die Nutzung dieser Website erklären Sie sich damit einverstanden, dass Cookies auf Ihrem Computer gespeichert werden.